Neubau von 2 Doppelhäusern und 3 Mehrfamilienhäuser
In Planung
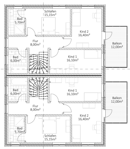
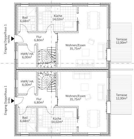
2 Doppelhäuser mit je 142,60 m²
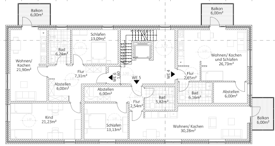
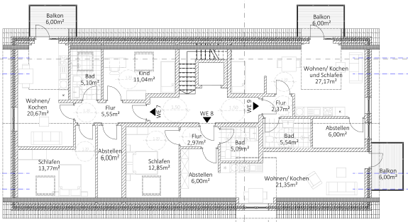
3 Mehrfamilienhäuser mit 1.769,32 m²
mit 32 Wohneinheiten
4.437 m² Grundstücksfläche
Die Immobilie
Standort:
Kategorie:
30890 Barsinghausen, Hauptstr. 26-30
Gehoben
Ausrichtung:
Objektnummer:
Räume:
Badezimmer:
Anzahl Balkone:
Süd West
G061AEW
5 Zimmer
1
1
Ausstattung
- Abstellraum
- Erschließung: voll erschlossen
- Bauweise: Massiv
- Unterkellert: Nein
- Bad mit: Fenster
- Boden: Fliesen, Dielen
- Heizungsart: Fußbodenheizung
- Befeuerungsart: Luft/Wasser-Wärmepumpe
In Großgoltern ist die Entwicklung eines hochwertigen Wohnensembles auf einem ca. 4.437 m² großen Grundstück vorgesehen. Das Projekt umfasst insgesamt drei Mehrfamilienhäuser sowie zwei Doppelhäuser mit einer Gesamtwohnfläche von ca. 2.345 m² und bietet eine ausgewogene Mischung aus unterschiedlichen Wohnformen.
Die drei Mehrfamilienhäuser beinhalten insgesamt 32 Wohneinheiten, aufgeteilt in 9, 11 und 12 Wohnungen je Gebäude. Ergänzt wird das Ensemble durch zwei Doppelhäuser, die zusätzlichen, familienorientierten Wohnraum schaffen. Die Wohnungen sind funktional und zeitgemäß geplant; ein Teil der Einheiten verfügt über Balkone, die den Wohnkomfort durch private Außenflächen erhöhen.
Alle Gebäude werden in massiver Bauweise errichtet und verfügen über zwei Vollgeschosse, was eine klare, ruhige Gebäudestruktur sowie eine harmonische Einbindung in das gewachsene Umfeld von Großgoltern ermöglicht. Die Satteldächer mit Gauben prägen das architektonische Erscheinungsbild und sorgen insbesondere in den Dachgeschossen für gute Belichtung und gut nutzbare Grundrisse.
Irrtümer und Änderungen bleiben vorbehalten. Für die Richtigkeit und Vollständigkeit wird keine Haftung übernommen.
Ihr Ansprechpartner
Herr Cihan Er
info@erco-wohnungsbau.de










