53 möblierte Appartments
In Planung
53 Appartments mit gesamt 1.468 m²
Teilmöbliert (Küchenzeile)
Fußbodenheizung
ca. 28 m² durchschnittliche Wohnfläche
Grundstücksfläche 1.490 m²
Die Immobilie
Standort:
Kategorie:
Hannover Stöcken, Mecklenheidestraße
Möbeliert
Ausrichtung:
Objektnummer:
Räüme:
Badezimmer:
Balkone:
Süd West
STEW2894
1 Zimmer Appartments
1
1 / EG Terrasse
Ausstattung
- Erschließung: voll erschlossen
- Bauweise: Massiv
- Unterkellert: Nein
- Boden: Fliesen, Dielen
- Heizungsart: Fußbodenheizung
- Befeuerungsart: Luft/Wasser-Wärmepumpe
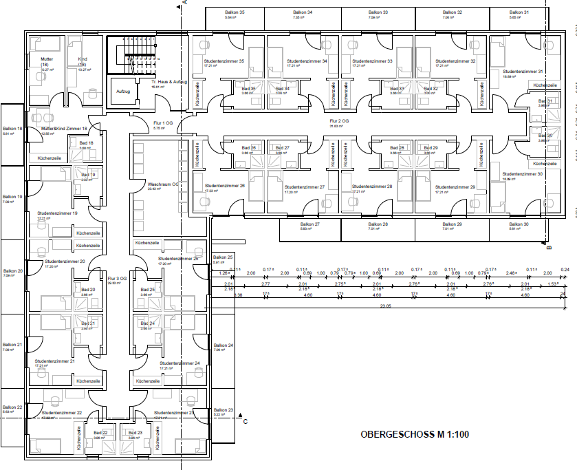
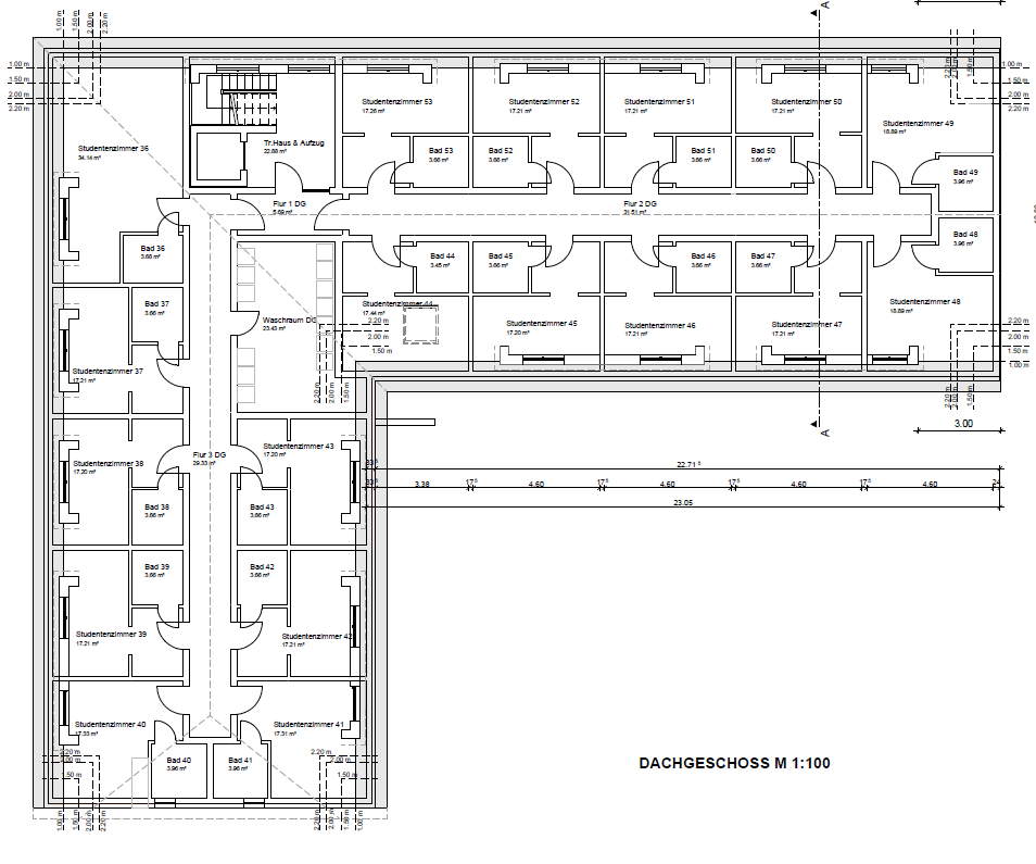
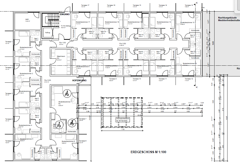
In Hannover-Stöcken ist die Realisierung eines modernen Wohnheims für Studierende auf einem ca.
1.490 m² großen Grundstück geplant. Das Projekt umfasst insgesamt 53 möblierte Appartements mit
einer durchschnittlichen Wohnfläche von ca. 21 m² und einer Gesamtwohnfläche von ca. 1.468 m².
Das Gebäude wird mit zwei Vollgeschossen sowie einem ausgebauten Satteldachgeschoss mit Gauben
errichtet.
Alle Appartements sind voll möbliert konzipiert und verfügen jeweils über ein eigenes Bad sowie eine
integrierte Kochnische mit Spüle, Herd und Schränken. Durch die kompakte und funktionale Ausstattung
wird den Bewohnerinnen und Bewohnern ein eigenständiges, komfortables Wohnen auf kleinem
Raum ermöglicht – optimal abgestimmt auf die Bedürfnisse von Studierenden.
Irrtümer und Änderungen bleiben vorbehalten. Für die Richtigkeit und Vollständigkeit wird keine Haftung übernommen.
Ihr Ansprechpartner
Herr Cihan Er
info@erco-wohnungsbau.de









